生活垃圾處理設備改造后鋼結構作業區域封閉隔斷圖
4、前端除臭噴淋系統
全套噴淋系統更新,充分滿足站內空間除塵除臭的工作需求。轉運站的卸料大廳(2路)、轉運大廳(2路)、快速卷簾門(1路)、每個壓縮泊位(6路)共布置11路噴淋管道,每隔1.5m的間距設置一個防滴漏精細霧化銅質噴嘴。每個泊位內部溜槽上方布置2個噴嘴,噴嘴連接降塵霧炮,除臭劑經降塵霧炮推送至卸料溜槽上空并均勻地噴灑,較小的液滴表面形成極大的表面積,易于吸附空氣中的粉塵粒子,起到降塵的作用。系統配套PLC控制器,令除臭劑按照設定的時間和噴灑量進行有效除臭。
5、末端除臭收集系統
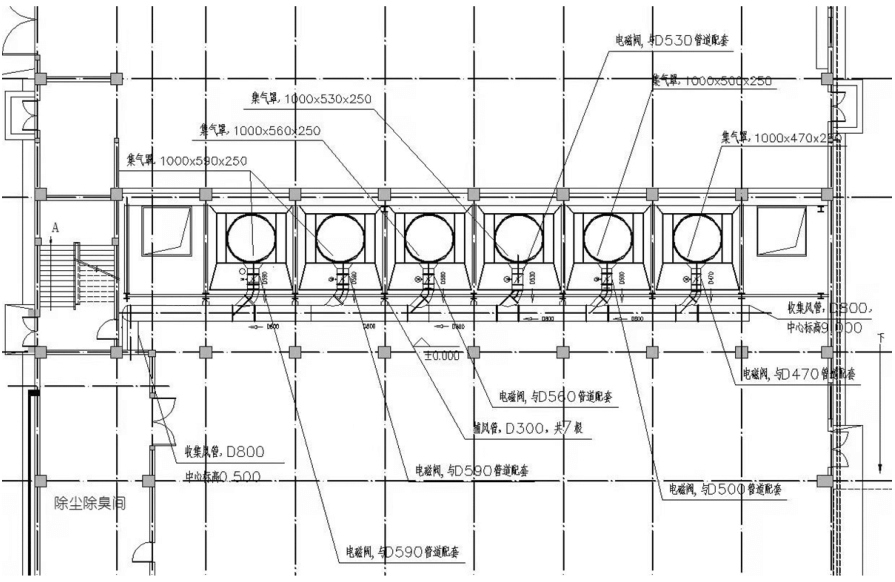
站內主要臭氣產生部位為垃圾壓縮作業區域,惡臭污染屬于無組織排放,故在作業泊位上部重新設置集氣罩,下部設置吸風口,收集風管鍍鋅材質,并配備風閥及電磁閥配合風口開關。改造后的泊位間因相互密閉,形成負壓式臭味收集環境,利用站內原有的除臭系統,將臭氣抽入末端化學洗滌工藝系統中,處理達標后的氣流從15m的高空排放。改造后末端除臭收集風管布置如下圖所示。

生活垃圾處理設備改造后末端除臭收集風管布置圖
(1)垃圾轉運效率及可靠性提升。老舊壓實系統及鋼結構支撐系統經過改造后,日均處理垃圾量由改造前的485t提升到改造后的589t,處理效率提升21.4%,基本恢復到日處理能力600t/d的設計標準。垃圾處理效率顯著提高,設備設施運行的穩定性、安全性提升明顯,保證垃圾轉運工作的正常開展。
(2)轉運站內外及周邊環境質量提升。整個泊位空間配合快速卷簾門,可以做到完全封閉,通過全新設計的末端臭氣收集系統,泊位始終處于負壓狀態,使垃圾惡臭和粉塵不向外溢散。站內外環境質量能夠完全符合《惡臭污染物排放標準》(GB14554—93)要求,有效控制惡臭污染物對大氣的污染,保護和改善周邊環境,達到空氣環保的目的。
(3)節能效果提升。轉運站點設備技術改造后,壓實器采用低噪聲高效變頻電機,整機工作噪聲臆68dB,且在功率不變的情況下,能耗等級從原來的三級提升為一級,電機效率提升3.1%。經測算,垃圾轉運站壓實器的使用頻率,日平均使用時間6h,日節約用電8.4度,年節約用電3139度,在現如今國家推行拉閘限電政策的大環境下,達到節能降耗的效果。
(4)經濟效益明顯。技術改造站點的總費用僅為430余萬元,如對整個站點進行拆除重新建設,對比當時建設費用5069萬元,財政支出大大減少。
環境治理提高生活質量是人們永恒的話題。鄭州某大型垃圾轉運站采用對舊生活垃圾處理設備優化提升的低投入改造方案,快速提升了城市垃圾處理,解決了垃圾處理中壓實效率、設備防腐和除臭除塵等3個重要的技術問題,延長了生活垃圾處理設備的使用壽命,提高了城市垃圾周轉效率與質量,大大節約了財政支出,改善了周邊地區的空氣質量和居住環境,創造良好的環境效益、社會效益和經濟效益。